Construye tu vivienda en Sant Fost, Proyecto incluido
- $170,000
- $170,000
Visión general
- 0
- 0.00 sqm
Descripción
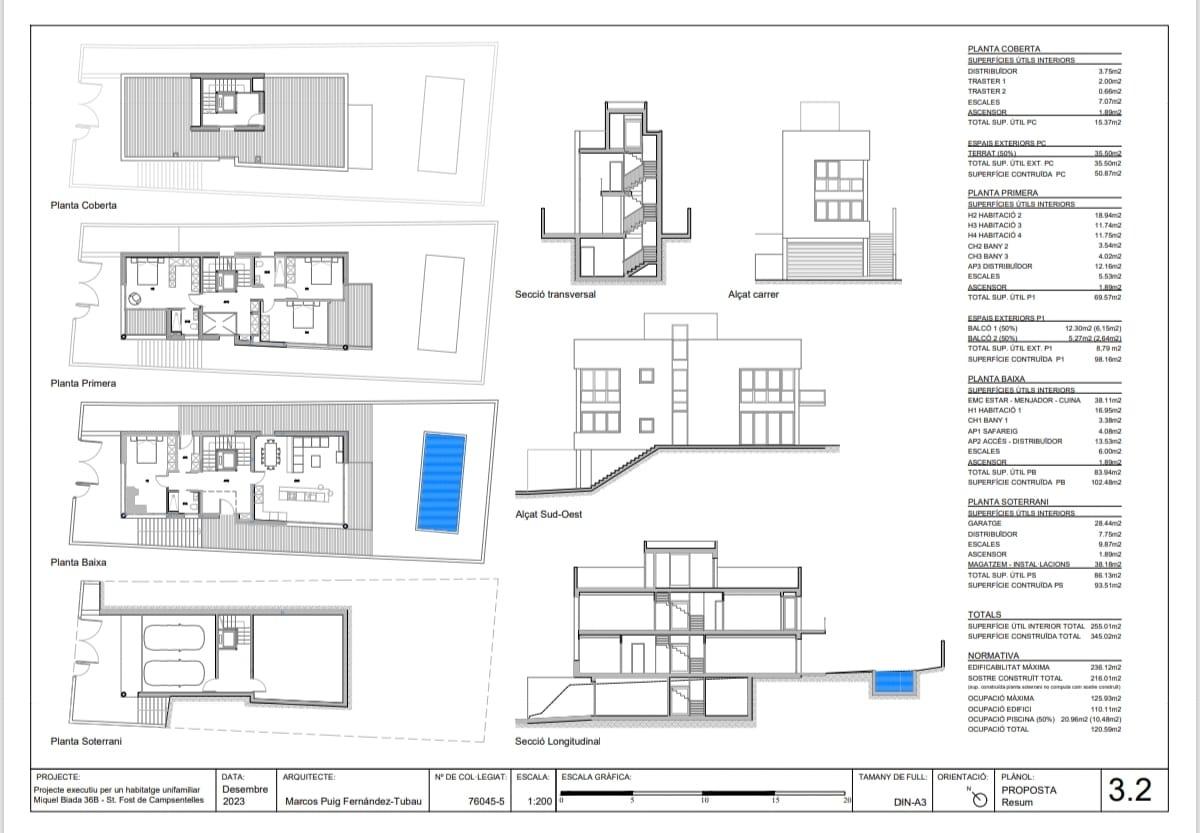
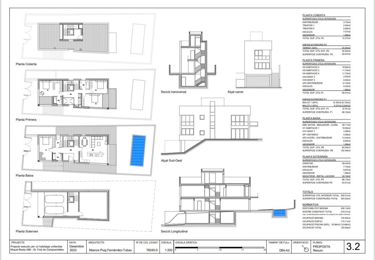
Solar urbano en entorno residencial exclusivo en Sant Fost de Campsentelles~~Se ofrece magnífico solar situado en la calle Miquel Biada nº 36, en una tranquila y cuidada zona residencial de Sant Fost de Campsentelles, rodeada de viviendas unifamiliares de calidad y un vecindario consolidado que garantiza un entorno agradable, seguro y familiar.~~La parcela se encuentra en una urbanización caracterizada por su buen ambiente vecinal, calles ordenadas y un entorno visualmente atractivo, ideal para quienes buscan calidad de vida, privacidad y comodidad, sin renunciar a una buena conexión con los principales núcleos urbanos de la zona.~~El solar se comercializa junto con un proyecto arquitectónico moderno, cuidadosamente diseñado para potenciar los espacios amplios, la luminosidad natural y la funcionalidad de la vivienda. Un proyecto actual que apuesta por líneas limpias, distribución inteligente y una arquitectura pensada para disfrutar del día a día, adaptándose a las necesidades de una vida moderna y confortable.~~Se trata de una oportunidad ideal para construir la vivienda de tus sueños, ya sea como residencia habitual o como inversión a largo plazo, en un entorno que combina tranquilidad residencial con proximidad a servicios, naturaleza y buenas comunicaciones.~~Un proyecto pensado para quienes valoran el diseño, el espacio y la posibilidad de personalizar cada detalle de su futuro hogar, en una ubicación que aporta valor y bienestar.~~Una oportunidad única para convertir un proyecto en una realidad a medida.~~El precio de venta no incluye impuestos ni gastos derivados de la compraventa.~
Dirección
Abierto en Google Maps-
Dirección: Can boc, Sant Fost de Campsentelles
-
Código postal: 08105
Detalles
Actualizado en abril 10, 2026 a 10:56 am-
ID de propiedad SFOST
-
Precio $170,000
-
Tamaño de propiedad 0.00 sqm
-
Área terrestre 315 sqm
-
Cuarto 0
-
Estado de la propiedad Vender
Calculadora de hipotecas
-
Pago inicial
-
Loan Amount
-
Monthly Mortgage Payment
-
Impuestos Sobre el Inmueble
-
Seguro de hogar
-
PMI
-
Monthly HOA Fees
Información de contacto
Ver anuncioListados similares
Calle Caspe, buenas posibilidades en finca del 1850
- $440,000
En Venta Tres Torres, una de las zonas más exclusivas de Barcelona
- $855,000
DUPLEX CON ENTRADA INDEPENDIENTE A 5 MIN DEL CENTRO
- $295,000
- ddelgadoco











